1 Tower, 10 Villages
Year: 2023 Fall @ GSD
Program: Adaptive Reuse
Location: New York
Instructor: KGDVS
The ideology of living in a village, originating from the very history of human existance, has been
largely neglected in the condensed metropolitan lifestyle.
The project “1 Tower, 10 Villages” aims to bring back the idea of village-style co-living through
adapting and reusing One Liberty Plaza, a typical steel structure office tower in New York City. The
ultimate goal of the project is to investigate the potential of verticle urbanism and provide a modular
prototype for future office adaptive reuse projects.

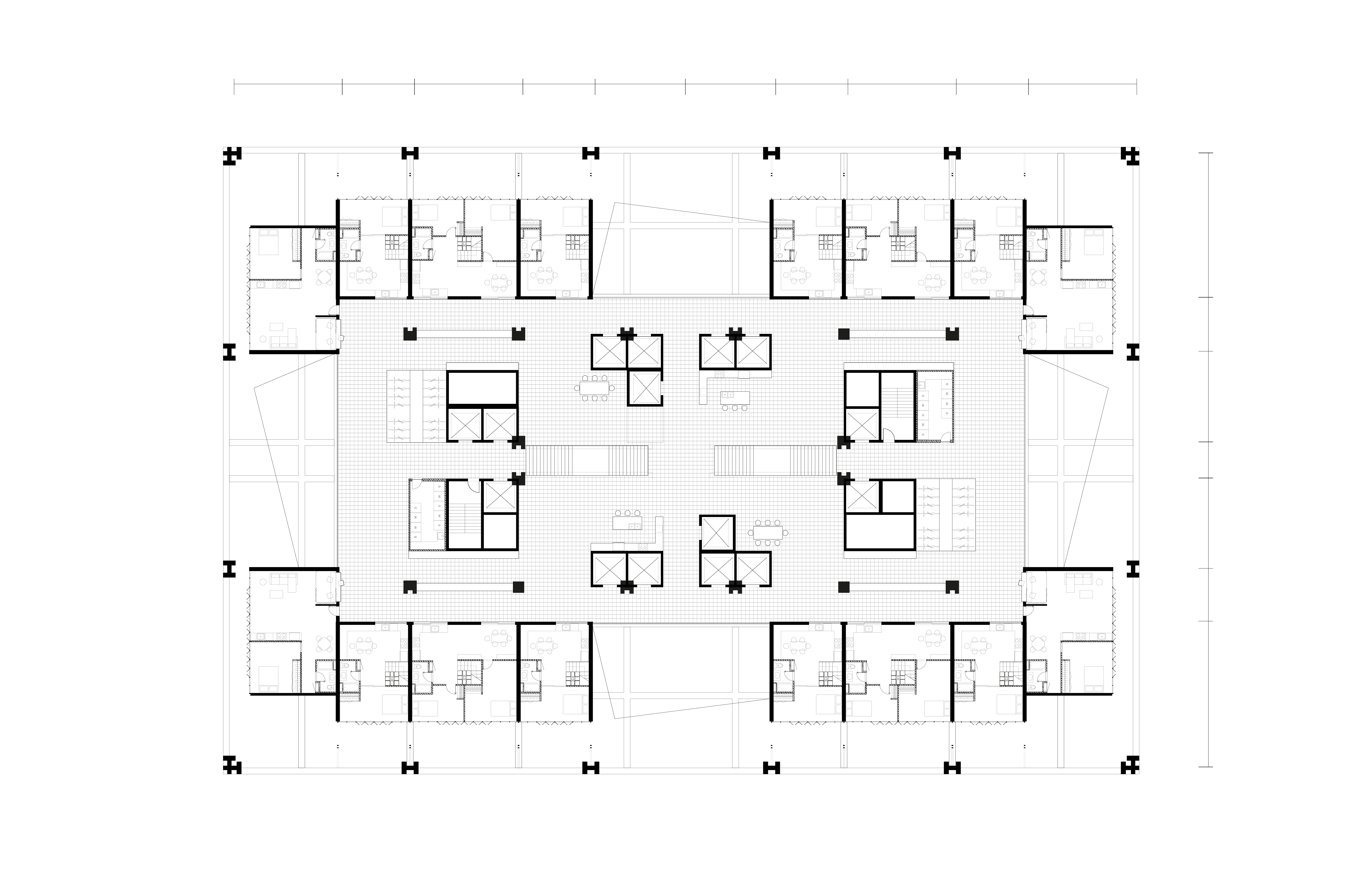
There are several major challenges: deep floor plate with a dim central circulation space; each floor
is isolated with no visual, physical and environmental connections to the other levels; there is limited
air and sun light circulation through the building.
To address these issues, the project introduces several transformative approaches: a 4-floor village
module with a central atrium; facade setback strategy; introducing horizontal voids through the
building; and use of reflective material to facilitate light and air circulation throughout the villages.
The envisioned lifestyle entails each resident enjoying expansive balconies with panoramic city
views and basking in the sunlight, while also having the option to step into the communal atrium to
share their work and spirit with fellow residents.

SECTION
![]()
TYP LVL 0
![]()
TYP LVL 1
![]()
TYP LVL 2
TYP LVL3

TYP LVL 0


TYP LVL 1





In essence, this innovative project seeks to weave the vibrancy of village living into the fabric of a
contemporary urban skyscraper, fostering a harmonious balance between individual retreats and
communal engagement.